Shakespeare Street, Sinfin, Derby, DE24 9HD

£74,950 OIRO

Property Features

  • Competitively priced for a quick sale
  • Schedule of refurbishment works required (the property is priced accordingly)
  • South-facing front garden / driveway
  • Large garden with greenhouses and outbuildings
  • Extra storage / closet space (ground and first floor)
  • Excellent location (walking distance to Rolls Royce, Sinfin Central Business Park and several other amenities)
  • Close to Ofsted-rated 'Good' schools, nurseries and the 'Derby Skillbuild' learning academy
  • 8.8% minimum rental yield (based on pre-refurb purchase price)
  • Make Enquiry
  • Call now: 0800 044 3798
  • Floorplan
  • View EPC
  • Print Details
  • Add To Shortlist
  • Send To Friend
  • Type: Terraced House
  • Availability: Sold
  • Bedrooms: 2
  • Bathrooms: 1
  • Reception Rooms: 1
  • Parking: Off Road Parking
  • Tenure: Freehold

Property Summary

CALLING ALL INVESTORS AND REFURBISHMENT ENTHUSIASTS!

Property Solvers Express Sales presents this competitively priced 2-bedroom terraced property ready for a buyer to come in and put their own stamp on it.

Situated within walking distance of Rolls Royce and Sinfin Central Business Park, the south-facing driveway / front garden area welcomes you into the property via an entrance hall.

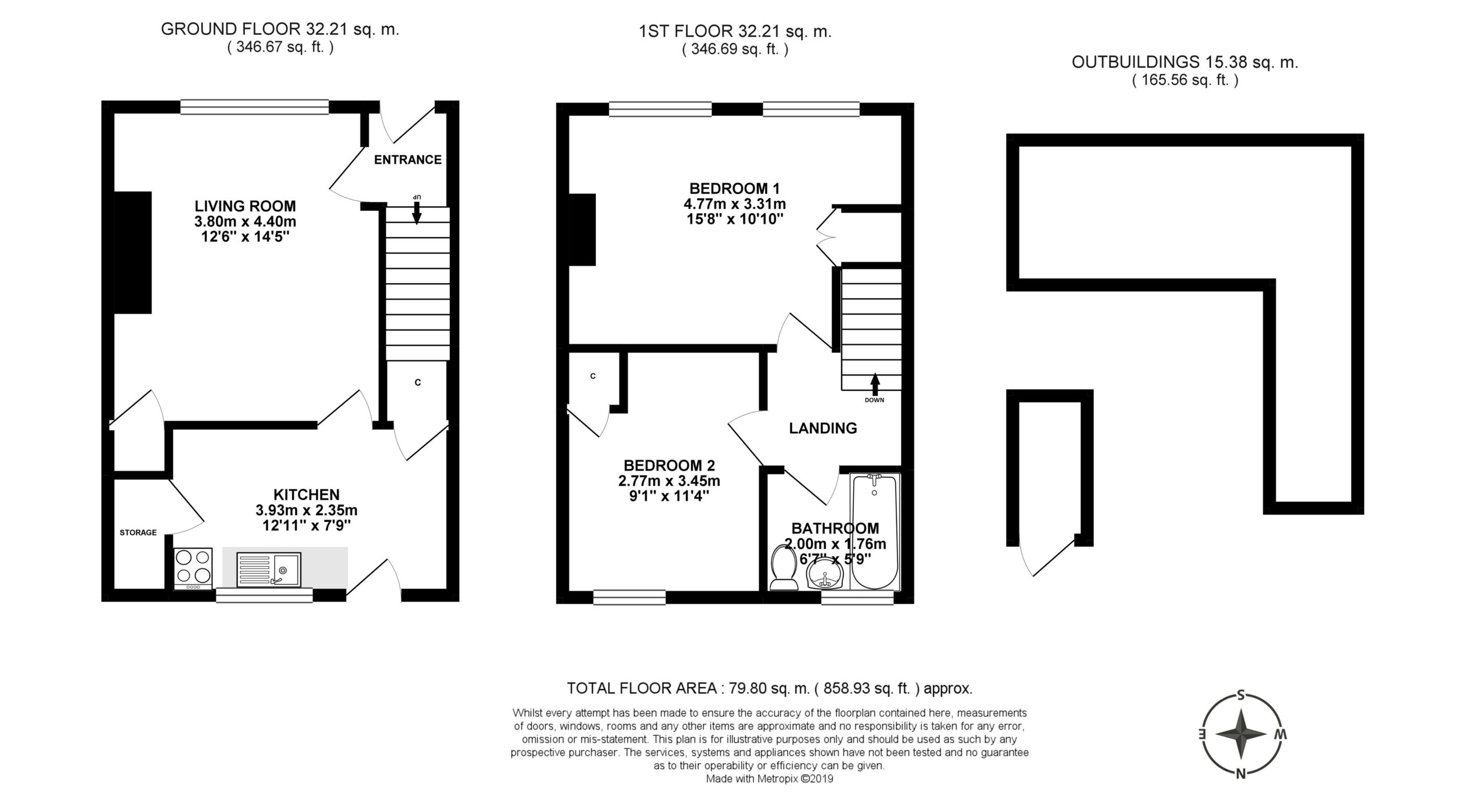
To the right is a large living room (183 square feet) which leads into a kitchen area (96 square feet) with extra storage space.

The kitchen opens out into a large private garden, containing greenhouses and outbuildings with a total of 166 square feet of sheltered space.

Upstairs is a master (160 square feet) and a well-proportioned second bedroom (104 square feet) - both with extra closet spaces - alongside a family bathroom.

A range of amenities can be found close the property including takeaways, a One Stop store, children's play area / basketball court, the Asda Sinfin Superstore in addition to excellent transport links into Derby and beyond.

Redwood, Grampian, Allenton Primary and Lord Street Nursery schools as well as the Derby Skillbuild learning academy and Little Angels Playschool are all nearby (all rated 'Good' by Ofsted).

The property also lies opposite the Sinfin Golf Course and Park.

This property real potential and is priced significantly less than other properties in the area, reflecting the need for refurbishment works.

It will make an excellent long-term buy-to-let investment (minimum 8.8% gross rental yield on purchase) or the perfect family home.

Properties at this level in the area do not stay on the market for long!  Viewings are available 7 days a week (including evenings and weekends).
  • Make Enquiry
  • Call now: 0800 044 3798
  • Floorplan
  • View EPC
  • Print Details
  • Add To Shortlist
  • Send To Friend

Estimate your mortgage repayments

How much will moving cost you?

Buying or Selling


Trustpilot

5.0 / 5

Five Stars

Verified
Customer
Reviews

Google Reviews
Reviews.io
View our reviews